RIBC連動拾い集計システム 『Dr.JIM』
| 価格(税別) | 要問い合わせ |
|---|---|
| 対応OS | Windows10/11 |
| 推奨CPU | Pentium 800MHz 以上 |
| 推奨メモリ | 512MB 以上 |
| 必要HD容量 | 1GB 以上 |
| その他必要な環境 | 1280×1024ピクセル |
| カテゴリー |
|
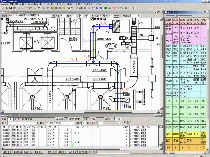
拾いデータのトレーサビリティ(追跡性)を重視した信頼性の高い拾い集計システムで、営繕積算システムRIBCにデータ連動。Excelデータ変換によりExcelだけで自由に編集・出力できる。
株式会社カンキョウエンジニアリング
| TEL | :03-5644-7688 |
|---|---|
| FAX | :03-5644-4588 |
※上記の内容は、登録企業・団体からの申請に基づき掲載しております。最終更新日:2024.07.24



















