ARES 2026 対応 『構造図版 adpack-NEO a』
| 価格(税別) | 85,000円 |
|---|---|
| 対応OS | Windows 11/10 64ビット版 |
| 推奨CPU | ARES Commanderの動作環境に準拠 |
| 推奨メモリ | ARES Commanderの動作環境に準拠 |
| 必要HD容量 | 50 MB |
| その他必要な環境 | CD-ROMドライブ |
| カテゴリー |
|
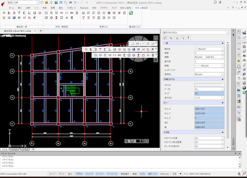
ARES Commander上で動作する構造図面作成機能に特化した2次元建築CAD。伏図作成ではRC柱やRC梁を複数のスパンに一括で配置。柱・梁コマンドは選択により伏図または軸組図の表現で作図が可能。多用される鉄骨部材はダイアログボックス内のプルダウンリストから選択できる。断面リストは各部材情報の入力により部材断面と文字が自動生成される。作図したリストの断面部材や伏図の部材情報を後から変更する場合はオブジェクト編集コマンドで対応。また、柱・梁・杭の部材情報を入力したCSVファイルをEXCELにて規定のフォ-マットで作成すれば、断面リストの自動生成が行える。
株式会社アークデータ研究所
| TEL | :03-5901-9450 |
|---|---|
| FAX | :03-5901-9451 |
| ソフト専用URL | :https://archdata.co.jp/seihin.html#hadpneoas |
※上記の内容は、登録企業・団体からの申請に基づき掲載しております。最終更新日:2025.11.18



















